Inker
Inker
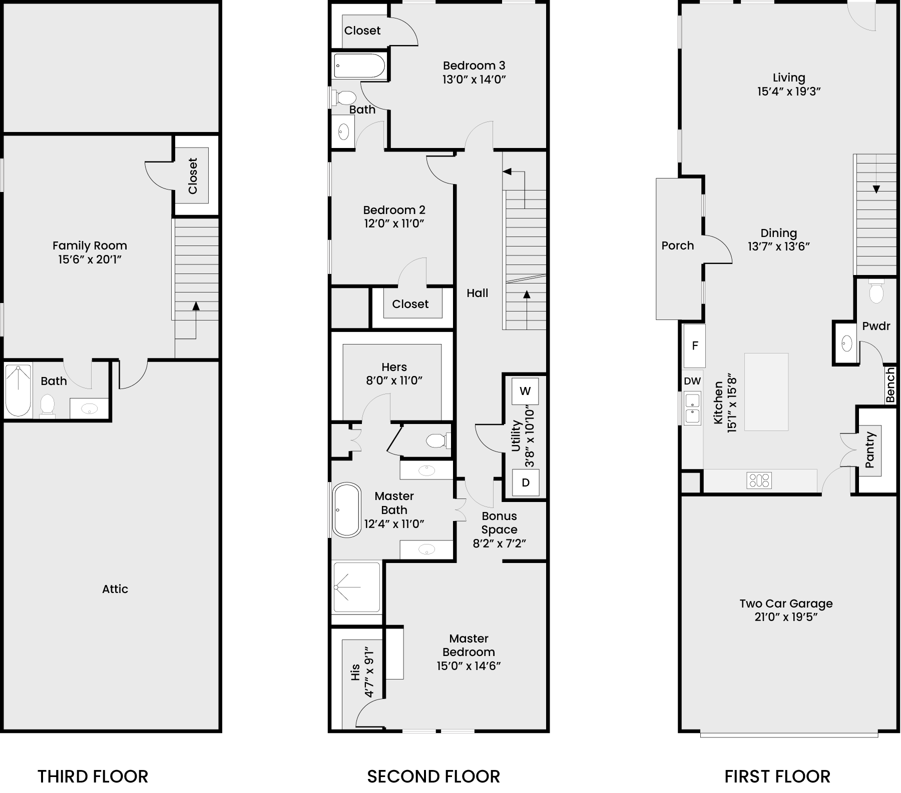
3 Beds
3.5 Baths
2,322 - 2,659 SqFt